NEW NATIONAL THEATRE - PUBLIC ARCHITECTURE
AHO, GK 4, Spring 23, 4 mos, Collaboration with: Malin Spord Flølo
Location:  Tillinløkka, Oslo
In response to the perceived closed and unwelcoming nature of the National Theatre, the project aims to redefine its identity by fostering accessibility and inclusivity. Central to this project is the deliberate rotation of the building by 47 degrees, creating four open outdoor spaces. The west entrance welcomes visitors with a spacious forecourt, while the south entrance caters to Back of House staff, and the north entrance accommodates bicycle parking. The rotation also creates an open area in the east, facilitating the seamless movement of set pieces without disruption. Cobblestone has been laid in the outdoor areas along with significant green spaces, The cobblestone serves as a breaking element for the existing roadway, bridging the historical Faculty of Law to the theatre. This design choice contributes to a connected park environment, framing the theatre with defined shapes that complement the surrounding landscape and structure in Universitetshagen.
The open foyer with an amphitheater cultivates a relaxed ambiance, encouraging diverse audiences to engage. An all-day café ensures the National Theatre remains a vibrant hub beyond scheduled events. The amphitheater seamlessly extends outdoors to the west, connecting the foyer to the surrounding environment. For optimal functionality, the Back of House faces south, optimizing natural lighting. Staff benefit from a separate entrance and an outdoor area. A shared stairwell and canteen encourages interaction among staff across various roles.

render_interior

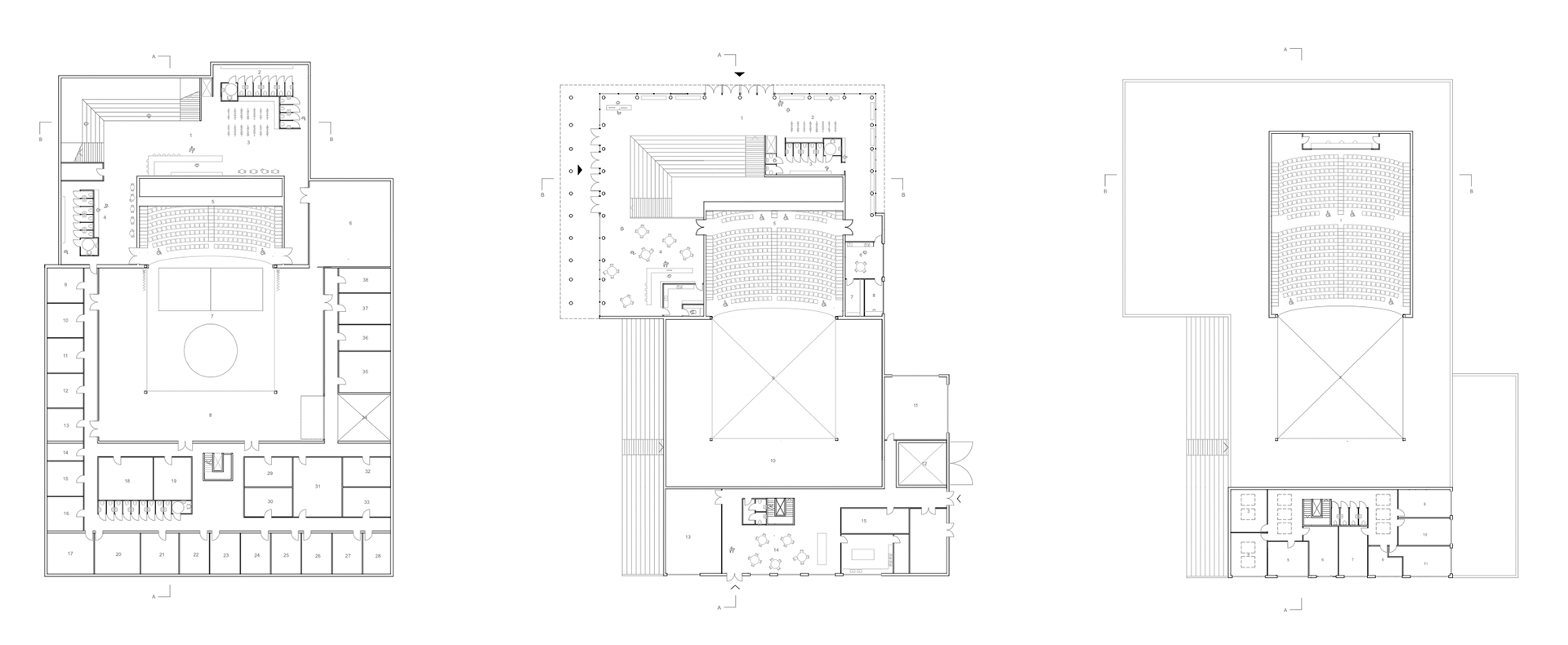
plan_1:500

section_1:200

modell_1:500

modell_1:500

modell_1:100

render_exterior

section_1:200

plan 1st, 2nd + 3rd floor_1:200

construction - stage

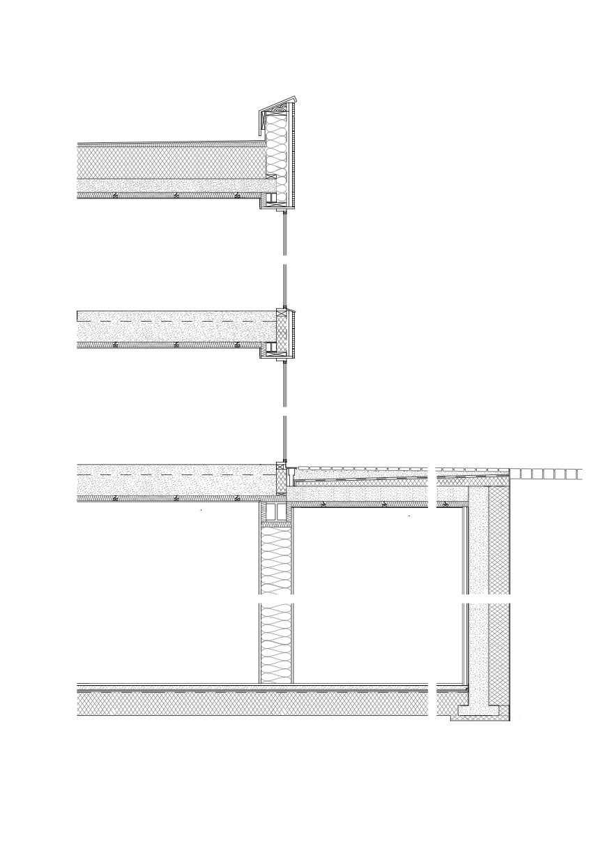
section, detail_1:20

diagram - concept

other works

Back to Top