LØRENSKOG CITY CENTER - URBANISM
AHO, GK5, Autumn 23, 5 mos, Collaboration with: Mary Baumann, Kristoffer Brun & Trong Hoang Le
Location: Lørenskog, Norway
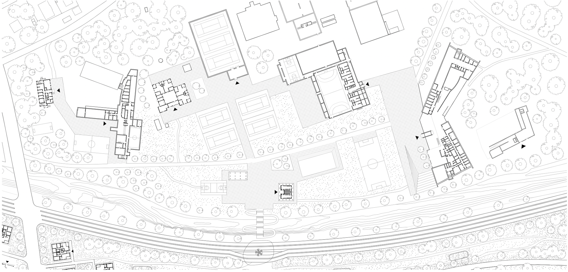
The proposed transformation of Lørenskog center presents a solution to the social, ecological, and economic challenges faced today. The connection of the north and south over RV159, the extension of Skårersletta north to Kjenn, and the addition of a pedestrian crossing with a signal bus station placed centrally within the area address the physical and social division caused by today’s situation of RV159. Welcoming and active public spaces at Kjenn have also been created by restructuring the surfaces and the sports fields to be clearly public. Metro center is transformed by creating an open and accepting public area with after-school activities, lounges, cafes, and bars, as well as an open park surrounding the perimeter of the center. These design solutions bridge the divide of social and economic differences, creating an inclusive and well-functioning city center. Before the transformation, roads and hard surfaces dedicated to cars occupied, on average, 68% of the space, while green structures had 19% of the space. After the transformation, roads and hard surfaces occupy 22% of the space, and green structures/ecology cover 71% of the space. A solution to housing in the area is also provided by placing 19 condominiums that offer 48 housing units within the space. This offers an alternative typology to the current trend of development. These additions also contribute life and activity to the area.

collage - lørenskog city center

the section of lørenskog we are working with. 

plan_1:1000

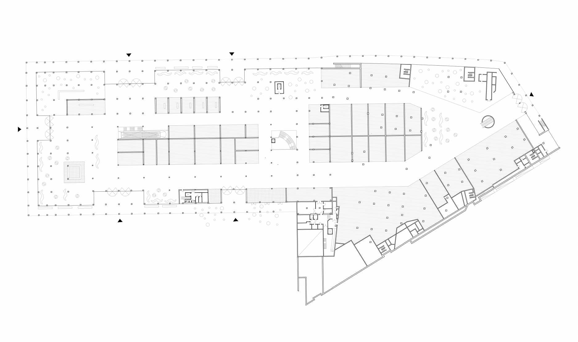
plan_1:1000

Section_1:500

section_1:200

model_1:500

plan - transformation of the local shopping mall_1:200

plan - byvilla_1:200

section_1:500

plan - restructuring kjenn_1:500

strategy

vision for lørenskog city center

plan_1:500

green structures

other works

Back to Top