NAKED HOUSE - URBAN HOUSING
AHO, GK3, Spring 23, 5 mos, Collaboration with: Malin Spord Flølo
Location: Sofienberggata, Oslo
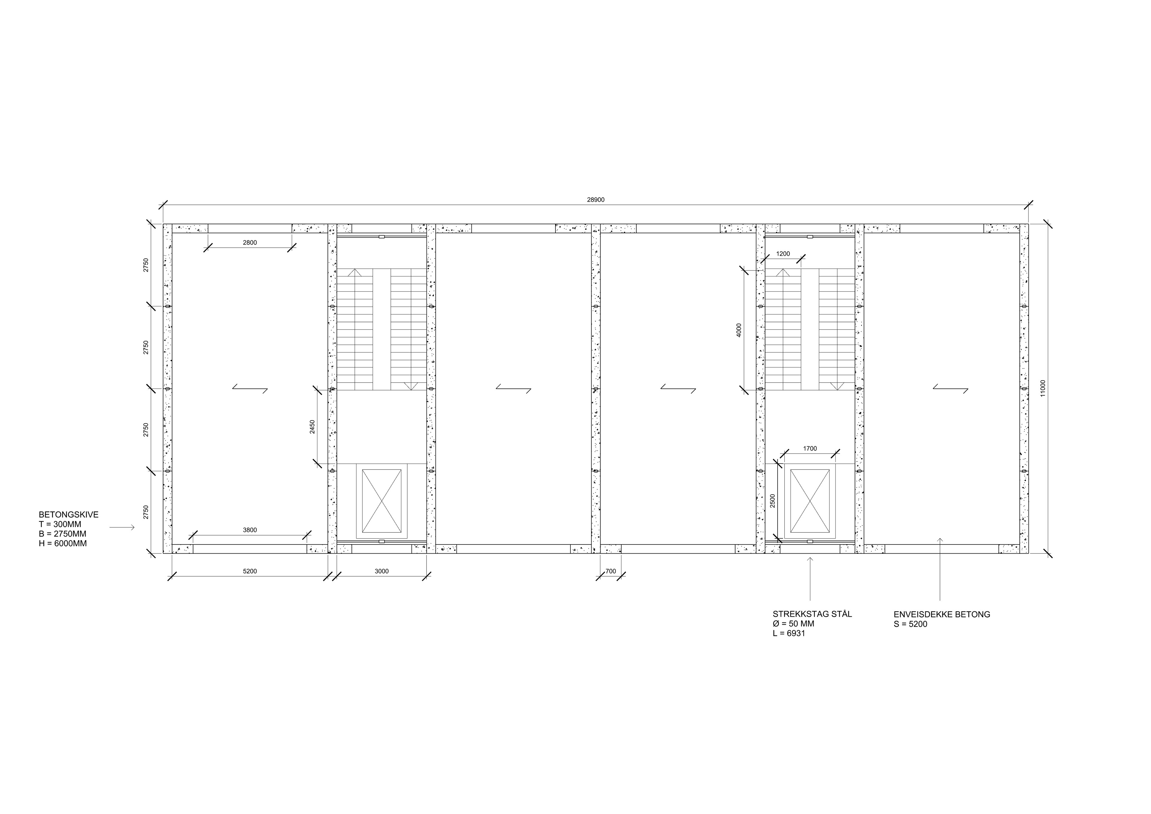
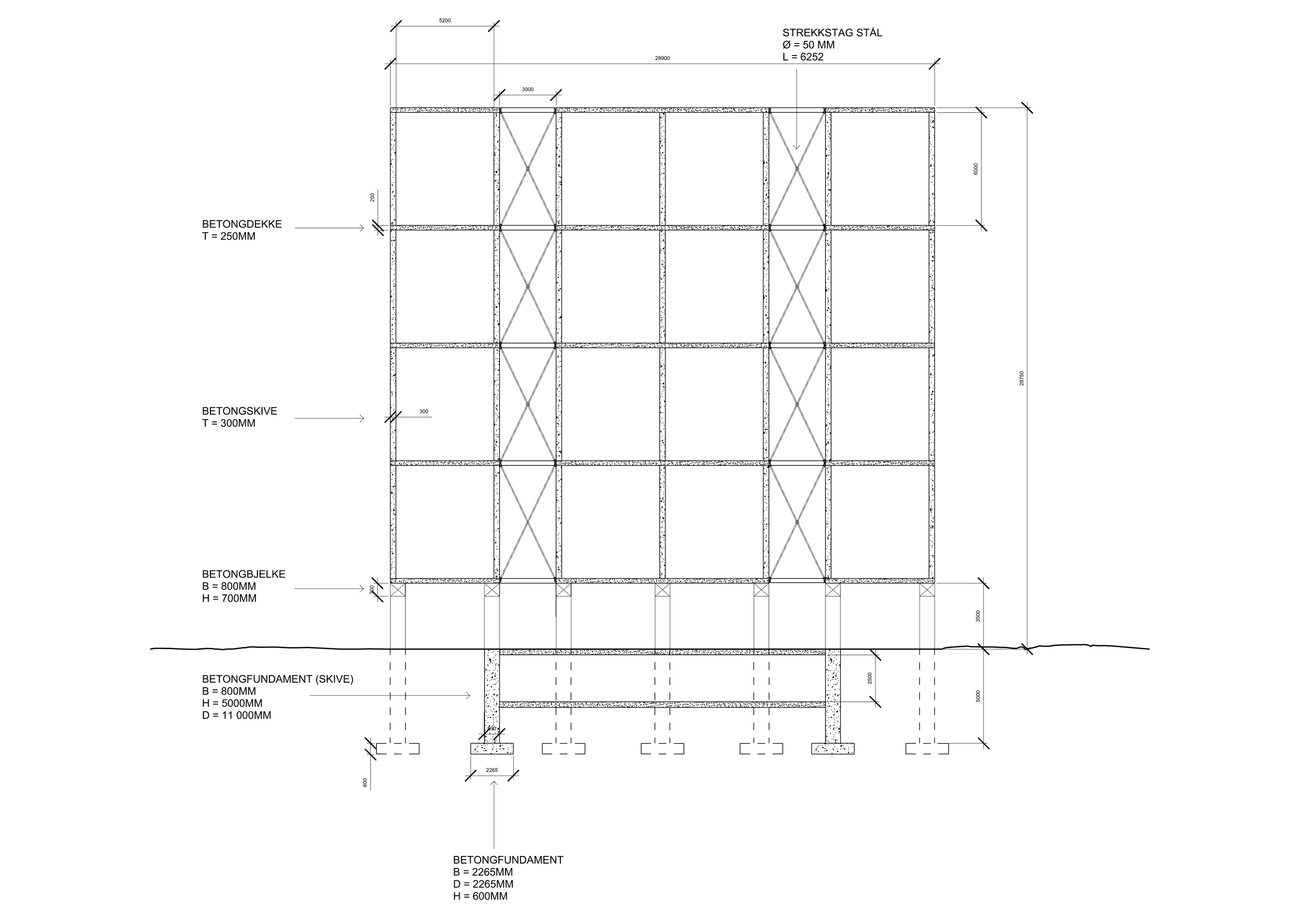
The project explores the concept ”naked house” and investigates an alternative approach to urban housing. The ”naked house” concept involves purchasing a shell and building one’s own apartment inside it. The apartments are constructed with a modular framework that can expand, contract, and exist in various forms. Some fundamental principles have been established to create a flexible shell with countless possibilities for varied floor plans. A technical floor, positioned 300 mm above the base, allows for connections to utility shafts anywhere in the apartment, providing the freedom to place bathrooms and kitchens wherever one desires. With a 6-meter ceiling height, residents have the option to build a second floor. The goal is to create apartments suitable for diverse individuals. By constructing their own apartments, residents will experience a greater sense of ownership and, consequently, a desire to live there for an extended period.

plan_1_1000

plan_1:200

plan, construction_1:200

modell_interior

construction, section_1:200

"A LIFE IN SOFIENBERGGATA"

modell_interior

other works

Back to Top